Senioriasunto

Asunto B216

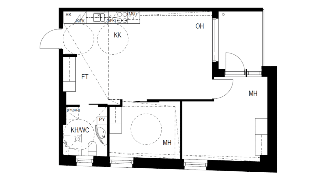
Tilava parvekkeellinen kolmio.

Tämä asunto on tällä hetkellä varattu.

Perustiedot

Asunnon nroB216
Tyyppi3h+kk+kph+prv
Kerros2. krs
Ala (pinta-ala)62.5 m²
Talon rakennusvuosi2012
Asumiskulu1 379,10 €/kk
Palvelupaketti1 012,00 €/hlö/kk
Kuukausikulu yhteensä2 391,10 €/kk
VesimaksuEi sisälly, 26,00 €/hlö/kk
SähköKulutuksen mukaan
Autopaikka75,00 €/kk
Asunnon nroB216
Tyyppi3h+kk+kph+prv
Kerros2 krs
Ala (pinta-ala)62.5 m²
Talon rakennusvuosi2012
Vuorokausi hinta
VesimaksuSisältyy hintaan
SähköSisältyy hintaan
IlmansuuntaKaakko
ParvekeLasittamaton, ei lasitus mahdollisuutta
AstianpesukoneLiitäntä on
PyykinpesukoneLiitäntä on
Asunnon turvallisuusratkaisutAutomaattinen paloilmoitinjärjestelmä (112), Sprinkleri
SäilytystilatIrtainvarasto
Kylpyhuoneen lisävarusteetLattialämmitys, Tukikaide, WCn nousutuet, Seinään kiinnitettävä suihkutuoli
Langaton internetEi
HissiKyllä, 3kpl

Palvelupaketti

Kevytturva-palvelupaketin sisältö 1012 €/hlö/kk

  • Palvelupäivystys 24/7
  • Turvapuhelin ja –ranneke*
  • Lounas päivittäin
  • Siivous joka 4. viikko
  • Asukaskeskustelu, 30 min joka 4. viikko
  • Yksilöllinen palvelukuvaus
  • Asukastietojen ylläpito
  • Vastaanoton palvelut
  • Monipuolinen harrastus- ja kulttuuritoiminta
  • Päivän lehti on luettavissa kahvilassa

*) Auttamiskäynneistä erillinen lisäpalveluhinnasto

Asunnon kuvaus

Esteetön kolmio, jossa on tilava eteinen, moderni keittiötila, avara olohuone ja makuuhuone sekä reilu kylpyhuone. Suihkutilassa on seinään kiinnitetty suihkutuoli. Keittiössä on jääkaappipakastin, liesi ja uuni. Keittiössä on liitäntä astianpesukoneelle ja kylpyhuoneessa liitäntä pesukoneelle. Tilava parveke.

Helatehtaankatu 1 00700 Helsinki

Palvelut lähellä

Ala-Malmin marketit ja palvelut kävelyetäisyydellä.

Julkinen liikenne

Malmin juna-asema kävelyetäisyydellä.

Talon kuvaus

Senioriasunnot

Saga Helapuisto sijaitsee Helsingin Ala-Malmilla erinomaisten kulkuyhteyksien varrella. Vuonna 2012 valmistuneessa Saga Helapuistossa on 92 huoneistoa aktiivisille senioreille. Talossa on lisäksi 12-paikkainen ryhmäkoti, joka palvelee erityistä huolenpitoa tarvitsevia ikäihmisiä.

Saga Helapuistossa asut omassa kodissasi, jonka voit sisustaa mieleiseksesi. Hyvin varustellut, 33,5-64 m² -kokoiset senioriasunnot on toteutettu Saga-palvelutalojen korkeiden laatukriteerien mukaisesti. Kaikissa asunnoissa on ilmava pohjaratkaisu, nykyaikainen keittiö, esteetön kylpyhuone ja turvapuhelin.

Palvelutalon asukkaiden vesimaksu on 26 euroa kuukaudessa ja sähkö veloitetaan kulutuksen perusteella. Asukkailla on mahdollisuus vuokrata autopaikka 75 euron kuukausihintaan.

Saga Helapuiston asukasvalinnoissa noudatetaan Asumisen rahoitus- ja kehittämiskeskuksen (ARA) ohjeita.

Katso vapaat senioriasunnot


Koti palveluiden keskellä

Saga Helapuistossa kotisi on palveluiden keskellä. Asumiskuluun sisältyy asunnon vuokra sekä yhteiset tilat, joita ovat talon oma ravintola, kahvila, kirjasto, kuntosali ja saunaosasto. Kaikilla asukkailla on lisäksi palvelupaketti. Uusien asukkaiden palveluiden pohjana on Kevytturva-palvelupaketti, joka pitää sisällään muun muassa päivittäisen lounaan ja kuukausittaisen siivouksen. Lisäpalveluita on saatavilla kattavasta palveluvalikoimastamme.

Palvelutalossamme on ympärivuorokautinen hoitajapäivystys, oma ammattitaitoinen sairaanhoitohenkilökunta, ateria- ja siivouspalveluita. Voit tilata haluamasi palvelut tarpeidesi mukaan ja hyödyntää hoito- sekä siivouspalveluista kotitalousvähennyksen. Meillä työskentelee toimintakykyäsi tukeva fysioterapeutti, jalkahoitaja ja vapaa-ajanohjaaja.

Palvelutalon asukkailla on mahdollisuus hakea kotihoidon palveluseteliä Helsingin kaupungilta. Hoidollisia palveluita ovat esimerkiksi lääkehuolto ja kotiavustaminen.


Palvelut vierailijoille

Myös ulkopuoliset vierailijat ovat tervetulleita nauttimaan Saga Helapuiston palveluista. Talomme kahvila ja ravintola ovat kaikille avoinna – voit nauttia herkullista lounasta, piipahtaa pullakahveille kahvilaan tai tulla runsaalle aamupalalle. Tutustu lisää Saga Helapuiston ravintolan palveluihin täältä.

Fysioterapeutti ja jalkahoitaja tarjoavat palveluitaan asukkaiden lisäksi ulkopuolisille vierailijoille. Lämpimästi tervetuloa!


Ympärivuorokautista palveluasumista ryhmäkodissa

Saga Helakodin viihtyisä ryhmäkoti on tarkoitettu erityistä huolenpitoa ja hoivaa tarvitseville sekä muistisairaille. Esteetön 12 asunnon ryhmäkoti sijaitsee palvelutalon yhteydessä talon ensimmäisessä kerroksessa. Saga Helakodissa ammattitaitoinen hoitohenkilökunta on läsnä vuorokauden ympäri asukkaiden välittömässä läheisyydessä. Ryhmäkodin asukkaiden palveluun kuuluvat hoivan lisäksi maukkaat päivittäiset ateriat ja vapaa-ajan viriketoiminta.

Tutustu myös muihin Helsingissä sijaitseviin Saga-palvelutaloihin!